大邑微生活-50万大邑人和你一起看

 找回密码
 立即注册

快捷登录

搜索
热搜: 活动 交友 discuz
查看: 27784|回复: 21

周边均价7000元+!凯旋购物中心+静惠山公园,大邑这个盘真的值得买吗?

[复制链接]
发表于 2021-5-26 17:25:05 | 显示全部楼层 |阅读模式 来自: 中国四川成都
伴随着楼市新一轮大潮的来袭,大邑楼市的产品也在快速的迭代更新,优秀的房企一定会加快升级自身的产品,来满足买房人挑剔的胃口。2021大邑房产迎来发展,想知道项目到底如何,下面就跟随小编一起了解。
富丽·阳光雅庭

-项目沙盘图-

开发商:成都富丽嘉邑地产开发有限公司
楼盘地址:大邑县晋元镇顺兴路188号
规划面积:14320.平米
建筑面积:39000.0平米
产权年限:70年
楼栋总数:6
主力户型:三居、四居
容积率:1.98
绿化率:30%
总户数:168
车位数:304
物业管理公司:成都合智合力物业有限公司
物业价格:1.9元/㎡/月
交房时间:2021-06-30

-现场实拍图-

该项目位于顺兴路188号并且其开发商是成都富丽嘉邑房地产开发有限公司。富丽阳光雅庭的绿化率达到30.00%,规划面积达到14320.00平米,建面约39000.00平米,未来将有168户家庭在这里生活。富丽阳光雅庭集交通优势、配套优势和产品优势于一体,吸引了众多买房客和投资者的关注。

周边配套
交通:成温邛高速40分钟直达成都。从大邑坐高铁出发30分钟可到达成都,中间间隔半小时,方便快捷。 项目距离高铁站3km,大邑客运中心1km,紧邻成温邛高速路,无论自驾出行还是乘车出行都挺方便,也很安全。


  

学校:大邑县潘家街幼儿园、大邑县潘家街小学、大邑县晋原中学、大邑县晋原镇初级中学、成都列五中学等优越教育资源


购物:项目距离凯旋购物广场、润驰国际广场开车仅需要5分钟的路程,以后购物将会特别方便,而且楼盘还自带了商业中心,超市、购物相当齐全。


公园:静惠山公园占地300余亩。位于静惠山脚下的三国遗迹子龙庙是最出名的景点。公园不仅能够修身养性还能爬山锻炼,站在静惠山山顶还能观看大邑县的全景,生活在这儿附近是一种什么样的感觉呢?


医院:楼盘附近有很多家医院,距离大邑县人民医院和大邑县望县中医院驾车仅仅需要10分钟左右的路程,还有大邑县妇幼保健院、大邑县骨科医院和大邑县疾控中心都相聚不远。


项目详情

建筑类型:小高层、花园洋房
规划户数:168户
楼层状况:1#-2#楼13层,3#-4#16层,2栋商业
物业管理费:1.9元/㎡/月
物业公司:成都合智合力物业有限公司
车位数:304


据了解,项目这次开盘推出1#-2#、3#-4#、2栋商业,楼层分别为13层和16层,分为两梯四户和一梯一户,户型面积117-143㎡之间,都为清水房


此次阳光雅庭设计了一梯一户的户型,是所有户型中最大的,客厅连通大景观阳台,彰显了主人尊贵的生活气度,全屋干湿分离设计,永葆家居生活清爽洁净,光想想都觉得很爽!


D户型:4室2厅2卫1厨, 建筑面积约143.00㎡

项目自身绿化率达到30%,所有根本不需要担心绿化的问题,而且周边还有静惠山公园,更是将居住环境提升了一个档次,富丽阳光雅庭整体规划合理,等待交房后,相信居住的舒适度能给住户交上一份满意的答卷。

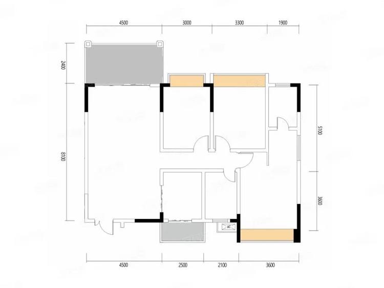
      户型展示      

户型A:3室2厅2卫1厨, 134.36㎡



B户型:3室2厅2卫1厨,127.11㎡



C户型:3室2厅2卫1厨, 117.00㎡



D户型:4室2厅2卫1厨,143.00㎡


富丽阳光雅庭这次共出了4种户型,从117-143㎡,满足不同人对住房的需求,最大程度的合理利用了空间。富丽阳光雅庭售楼部已经开放,如果需要获取更多信息,详情请咨询售楼部。



价格:7000左右,具体价格还需与开发商协商。

周边有两个老的楼盘,泰坤首座和杜松雅韵,二手房价格都在7000-8000之间;对于想要买房的朋友来讲,新房、二手房的价格都可以用来参考下;


(注:具体楼盘价格会根据楼层、户型等条件而不同,具体以售楼处为准,此数据仅供考。)


总的说来,富丽阳光雅庭地理位置极好。而且小区品质不错,小区内配套设施非常完善,从学校、公园、商业街到农贸市场都应有尽有。
大邑县现在变的越来越好,许多家楼盘可以供大家选择,比较买房是人生中的一件大事,也是一家人今后居住的地方,所有,周边配套,小区自身环境这些都要着重考虑,最后小编也希望大家买到自己满意,喜欢的房子。

下面是小编微信
欢迎房友探讨、闲聊、爆料

部分图片来源于网络
如侵删


回复

使用道具 举报

0

主题

201

帖子

1万

积分

登峰造极

Rank: 11Rank: 11Rank: 11Rank: 11

积分
11039
发表于 2021-5-26 18:37:23 来自手机 | 显示全部楼层 来自: 中国
空气好,看病方便
回复

使用道具 举报

0

主题

186

帖子

4884

积分

功行圆满

Rank: 9Rank: 9Rank: 9

积分
4884
发表于 2021-5-26 19:40:32 来自手机 | 显示全部楼层 来自: 中国四川成都
广场和静惠山离他八帽子远
回复

使用道具 举报

0

主题

71

帖子

4723

积分

功行圆满

Rank: 9Rank: 9Rank: 9

积分
4723
发表于 2021-5-26 20:18:22 来自手机 | 显示全部楼层 来自: 中国四川成都
离大型购物中心远 离体育场远 离公园远 离学校也远  如果在工业区上班的话 倒是离的很近的 这个户型楼盘如果在新城区就夹吃了
回复

使用道具 举报

12

主题

1381

帖子

3万

积分

深不可测

Rank: 14Rank: 14Rank: 14Rank: 14

积分
35318
发表于 2021-5-26 20:34:04 来自手机 | 显示全部楼层 来自: 中国四川成都
是不是以前的阳光酒店哦,标扯那些虚的,离派出所近,大大节约出警时间
回复

使用道具 举报

1

主题

51

帖子

3341

积分

功行圆满

Rank: 9Rank: 9Rank: 9

积分
3341
发表于 2021-5-26 20:53:31 来自手机 | 显示全部楼层 来自: 中国四川成都
日不起壳子 发表于 2021-05-26 20:34
是不是以前的阳光酒店哦,标扯那些虚的,离派出所近,大大节约出警时间

看穿不要说穿你把人的要整神…
回复

使用道具 举报

0

主题

149

帖子

2715

积分

炉火纯青

Rank: 8Rank: 8

积分
2715
发表于 2021-5-26 20:58:53 来自手机 | 显示全部楼层 来自: 中国四川成都
位置注定不行,如果在新城区或者南门,那就好了。但是你说的不远好像都远啊。
回复

使用道具 举报

3

主题

81

帖子

9347

积分

登峰造极

Rank: 11Rank: 11Rank: 11Rank: 11

积分
9347
发表于 2021-5-26 21:04:33 来自手机 | 显示全部楼层 来自: 中国四川成都
日不起壳子 发表于 2021-05-26 20:34
是不是以前的阳光酒店哦,标扯那些虚的,离派出所近,大大节约出警时间

就是以前的阳光酒店
回复

使用道具 举报

4

主题

122

帖子

1万

积分

登峰造极

Rank: 11Rank: 11Rank: 11Rank: 11

积分
10042
发表于 2021-5-26 22:23:17 来自手机 | 显示全部楼层 来自: 中国四川成都
日不起壳子 发表于 2021-05-26 20:34
是不是以前的阳光酒店哦,标扯那些虚的,离派出所近,大大节约出警时间

就是原来阳光花园酒店,斜对面就是派出所
回复

使用道具 举报

0

主题

258

帖子

7361

积分

自成一派

Rank: 10Rank: 10Rank: 10

积分
7361
发表于 2021-5-26 22:24:53 来自手机 | 显示全部楼层 来自: 中国四川达州
唯一近的是工业区
回复

使用道具 举报

您需要登录后才可以回帖 登录 | 立即注册

本版积分规则

QQ/Archiver/手机版/小黑屋/大邑微生活 ( 蜀ICP备18004675号 )

Powered by Discuz! X3.4

快速回复 返回顶部 返回列表